*Geräumige Altbau-Wohnung mit Stuckverzierungen und Badewanne*

Kurzbeschreibung

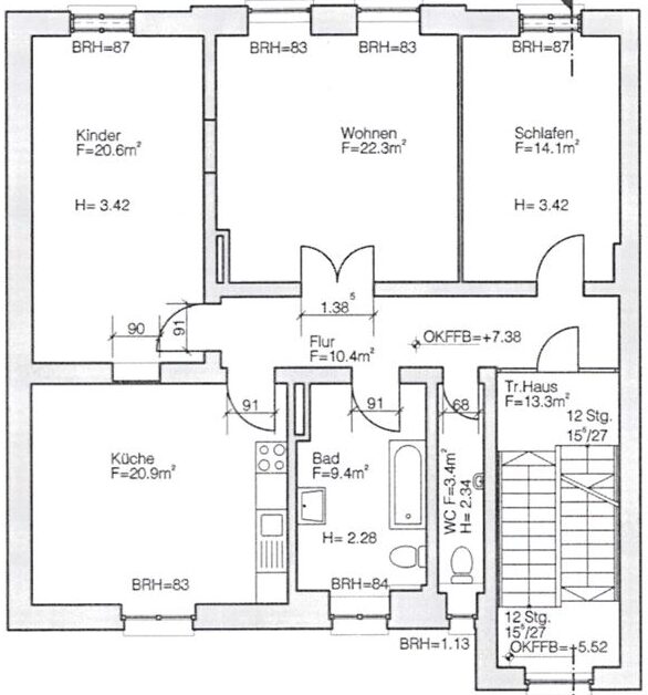
Frisch renovierte Altbauwohnung mit ca. 101 m² Wohnfläche, beeindruckenden Deckenhöhen von ca. 4,90 m und stilvollen Flügeltüren. Drei Zimmer, große Wohnküche, neues Tageslichtbad mit Badewanne, separates WC sowie Gemeinschaftsgarten. Gas-Etagenheizung, Energieeffizienzklasse F, Keller und Waschküche vorhanden.

101,00 m²

3 Zi.

Allgemein

Bereits ab Kaltmiete € 1.160,--

Bausubstanz & Energieausweis

Objektbeschreibung

Hier erwartet Sie eine wunderschöne Altbauwohnung mit ca. 4,90m hohen Decken inmitten von Wiesbaden.
Auf ca. 101m²-Wohnfläche verteilen sich ein Wohnzimmer mit charmanten Flügeltüren, zwei Schlafzimmer, ein geräumiger Flur, ein großzügiges Tageslichtbad mit Badewanne, ein separates WC und eine enorme Wohnküche. Der Gemeinschaftsgarten im Hinterhof ist für alle Mieter im Hause nutzbar und wird von ihnen am liebsten im Sommer zum Verweilen und Grillen genossen.
Abgerundet wird dieses Angebot durch einen Keller- und Waschraum im Untergeschoss.

Diese Wohnung wurde kürzlich komplett renoviert und durch ein neues Badezimmer ergänzt. Sie sind der erste Mieter, der nun diese Vorzüge genießen darf!

Lagebeschreibung

Die Landeshauptstadt Wiesbaden, inmitten der wirtschaftlich bedeutenden Rhein-Main-Region, verfügt über ein umfangreiches kulturelles Angebot. Die Einkaufsmöglichkeiten, sowie das Sport- und Freizeitangebot sind vielfältig und das Erholungsangebot durch seinen historischen „Gesundheitstourismus“ bekannt. Die Verkehrsanbindungen in alle Richtungen sind optimal, dies gilt sowohl für Nahverkehrsmittel, als auch für Bahn- und Autobahnanbindungen. 
Sie möchten mehr zu Wiesbaden erfahren? So rufen Sie uns gerne an!

Ausstattung

– Tolles Wohnhaus inmitten von Wiesbaden
– Altbau
– hohe Decken (ca. 4,90m)
– tolle Kassettentüren und Türzargen
– ca. 101m²-Wohnfläche
– 3-ZKB
– großes TL-Bad mit Badewanne (frisch saniert!!)
– separates WC
– Wohnküche
– wunderbare Flügeltüren
– Gemeinschaftsgarten
– Gas-Etagenheizung
– die Kosten für Strom und Gas trägt der Mieter separat
– Keller
– Waschküche
– diese Wohnung wird vollständig renoviert übergeben

Sonstiges

Alle genannten Angaben zum Objekt beruhen auf den Angaben des Eigentümers. Irrtum vorbehalten! 

Ihr Datenschutz ist uns wichtig. Weitere Informationen hierzu finden Sie auf unserer Homepage unter
https://dasilva-immobilien.de/datenschutzerklaerung.html . Bei weiteren Fragen freuen wir uns über Ihre Kontaktaufnahme.

Alle Angaben ohne Gewähr. Die Inhalte dieses Exposés stammen vom Anbieter. Für Daten Dritter
übernehmen wir keine Haftung. Das Angebot ist nur für Sie bestimmt und darf nicht an Dritte
weitergegeben werden. Eine Weitergabe verpflichtet zur Zahlung von Schadenersatz, falls ein
Dritter dadurch zum Vertragsabschluss kommt und dieses Angebot provisionspflichtig ist.
Bitte nehmen Sie Kontakt mit uns auf, wenn Sie weitere Fragen zur Immobilie haben oder einen
unverbindlichen Besichtigungstermin vereinbaren möchten.
ALLGEMEINE GESCHÄFTSBEDINGUNGEN
Sie können Ihre Vertragserklärung innerhalb von 14 Tagen ohne Angabe von Gründen in Textform
(z. B. Brief, Fax, E-Mail) widerrufen. Die Frist beginnt nach Erhalt dieser Belehrung in Textform.
Wird die Belehrung nicht spätestens bei, sondern erst nach Vertragsabschluss mitgeteilt,
beträgt die Widerrufsfrist einen Monat. Im Falle eines Fernabsatzvertrages gem. § 312b Abs. 1
Satz 1 BGB beginnt die Frist nicht vor Vertragsabschluss. Zur Wahrung der Widerrufsfrist genügt
die rechtzeitige Absendung des Widerrufs.
Der Widerruf ist zu richten an:
Da Silva Immobilien, Inh. Carina Da Silva
Hauptstr. 53
55246 Mainz-Kostheim
Telefon: 06134 – 9579784, 0152 – 56370528
info@dasilva-immobilien.de
Widerrufsfolgen:
Im Falle eines wirksamen Widerrufs sind die beiderseits empfangenen Leistungen zurück zu gewähren
und ggf. gezogene Nutzungen (z. B. Zinsen) herauszugeben. Können Sie uns die empfangene
Leistung ganz oder teilweise nicht oder nur in verschlechtertem Zustand zurückgewähren,
müssen Sie uns insoweit ggf. Wertersatz leisten. Dies kann bei Fernabsatzverträgen dazu führen,
dass Sie die vertraglichen Verpflichtungen für den Zeitraum bis zum Widerrufs gleichwohl
erfüllen müssen. Für die Verschlechterung der Sache müssen Sie Wertersatz nur leisten, soweit
die Verschlechterung auf einen Umgang mit der Sache zurückzuführen ist, der über die Prüfung
der Eigenschaften und Funktionsweise hinausgeht. Unter “Prüfung der Eigenschaften und
Funktionsweise“ versteht man das Testen und Ausprobieren der jeweiligen Ware, wie es etwa
im Ladengeschäft möglich und üblich ist. Paketversandfähige Sachen sind auf unsere Kosten
und Gefahr zurückzusenden. Nicht paketversandfähige Sachen werden bei Ihnen abgeholt. Verpflichtungen
zur Erstattung von Zahlungen müssen innerhalb von 30 Tagen erfüllt werden. Die
Frist beginnt für Sie mit der Absendung Ihrer Widerrufserklärung; für uns mit deren Empfang.
Im Falle eines Fernabsatzvertrages erlischt Ihr Widerrufsrecht vorzeitig, wenn der Vertrag von
beiden Seiten auf Ihrem ausdrücklichen Wunsch vollständig erfüllt ist, bevor Sie Ihr Widerrufsrecht
ausgeübt haben.

Jetzt Immobilie in Mainz verkaufen – Kontakt aufnehmen

Vertrauen Sie beim Immobilienverkauf in Mainz auf Erfahrung, Transparenz und regionale Marktkenntnis. Wir freuen uns, Sie persönlich kennenzulernen und Ihre Immobilie erfolgreich zu vermitteln.